

Blue Tower apartment
in Tel Aviv
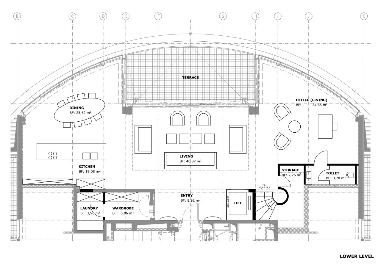
The Blue Towers are situated right by the sea in the north of Tel Aviv. The duplex apartment is on the 10th and 11th floors of one of the towers and was handed over to us in shell form. The floor plans have been adapted according to the client’s wishes; specific furnishings are currently still in the planning stage.